地下人防工事的钢筋混凝土墙体间,一根易被忽视的密闭人防套管(部分场景中也称作密闭防水套管、防护密闭套管),常常左右整个工程的防护等级。上海市人民政府 2024 年发布的人防设备抽检报告包含一组警示性数据:密闭人防套管预埋偏差一旦出现 —— 可能是翼圈焊接疏漏,也可能是密闭套管壁厚不达标 —— 后续整改投入会直接上涨 30% 以上。更严峻的情况是,若防水性能、抗冲击表现未达要求,整个人防工程可能因防护失效被评定为 “不合格”,前期投入的人力与物资将面临重大损耗。
作为金属管道穿越墙体的 “衔接构件”,它的作用远不止 “穿管” 这一项。地下工程环境中,管道穿墙部位易出现渗水现象、温差变形引发的缝隙,密闭人防套管需应对这两类难题:既要契合 04FS02 图集对 A-F 六种类型(单环 A/B 型、双环 C/D 型、三环 E/F 型)的结构规范,也要满足 07FS02 图集内 “穿越防护隔墙需配备翼圈与防护电阻板” 的安装要求。对建筑、市政工程的中高层管理者而言,选准密闭人防套管,便是守住工程验收的 “硬性门槛”。
一、2 项核心标准:合格厂家的 “入场券” 没那么好拿
1. 产品合规性:差 3mm 都可能 “全盘皆输”
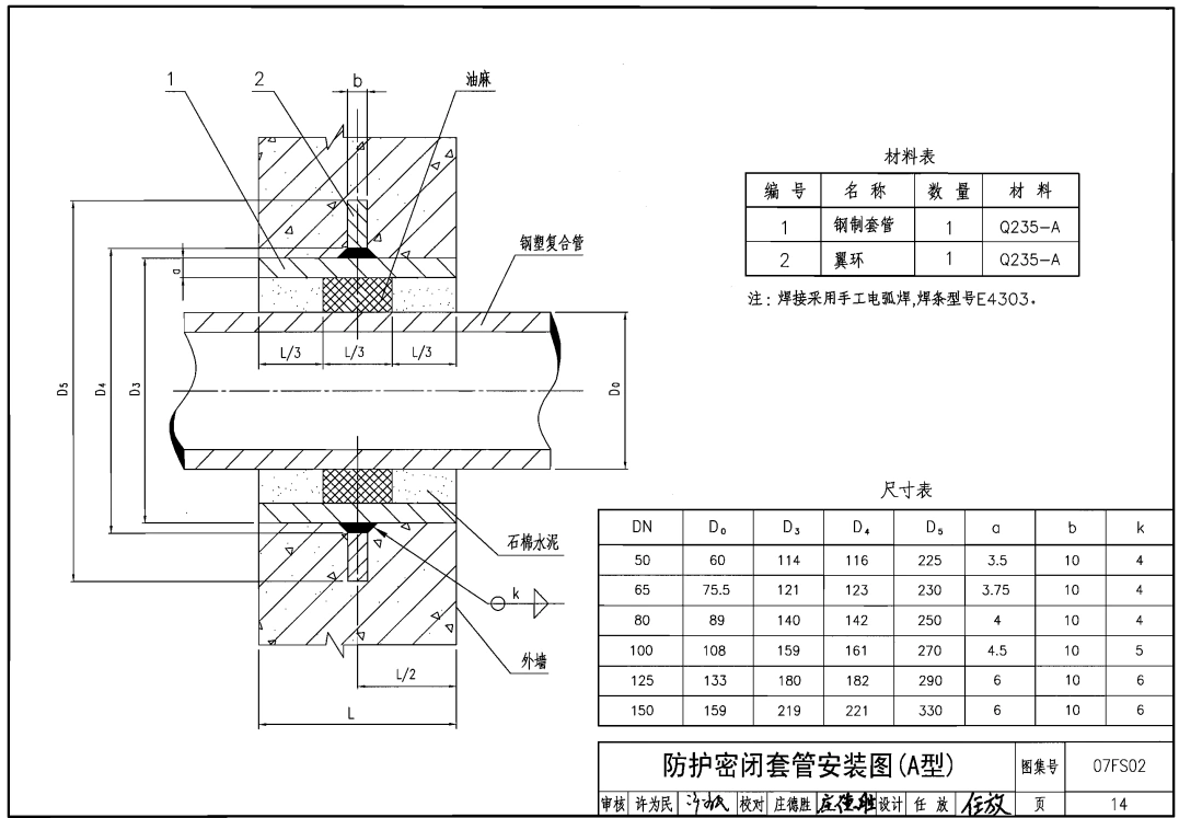
正规密闭人防套管生产厂家要通过 “图集核验关”。04FS02 图集对每种类型的结构细节有明确界定:例如 A/B 型采用基础单环设计,E/F 型则需增设三环密闭翼圈;07FS02 图集进一步细化至安装场景 —— 管道穿越密闭隔墙时,密闭套管需配备密闭翼圈,穿越防护隔墙时,翼圈之外还需加装防护电阻板,缺少任一部件均不符合规范要求。
材质与工艺的管控同样严格。行业内默认的基础材质为 Q235-A 碳钢,但并非所有碳钢都适用:封闭翼圈厚度需达到 6mm 以上,厚度不足会削弱抗冲击波效果;焊接操作需采用 T42 焊条,焊缝高度应超过 6mm,且需实现全环缝焊接,存在一处虚焊便可能留下渗水隐患。这些参数看似细微,却是划分 “合格产品” 与 “劣质产品” 的核心依据。
2. 能否承接工程的 “特殊需求”?
工程场景向来不存在 “统一标准”。部分化工项目需要耐腐蚀性更优的解决方案,部分地下管廊工程对密闭套管直径有超出常规的要求,此时密闭套管厂家的定制能力便成为 “加分亮点”。奥凡环保科技在这一领域的表现较为突出:既能批量产出 A-F 型标准密闭人防套管,满足常规工程的采购需求;遇到特殊订单 —— 例如定制双环单密闭套管、三环双密闭套管 —— 也能实现快速响应。
这背后离不开数控加工设备的支撑:法兰平整度误差可控制在 3mm 以内,近似一根火柴头的粗细;生产周期较行业平均水平缩短 20%,对工期紧张的项目而言,这样的效率能降低工程延误风险。从人防地下室到污水处理厂,从市政管道工程到化工园区建设,不同场景的安装需求均能得到适配。
二、奥凡环保科技凭什么脱颖而出?
1、从钢坯到成品的 “层层筛查”
奥凡环保科技作为专注密闭人防套管领域的企业,他的质控体系贯穿生产全流程。原材料进场阶段,每一批碳钢都需经过光谱检测,确保成分符合 Q235-A 标准,杜绝以次充好现象;生产过程中,焊接环节配备专人巡检,保障焊缝高度、焊缝密实度达标每批次产品均附带检测报告,产品合格率连续 3 年维持 100%,这一数据显著高于行业 92% 的平均水平。
2、不止销售产品,更提供 “解决方案”
采购密闭人防套管时,不少管理者会遭遇 “选型困惑”:不清楚哪种类型适配自身工程,不了解填充材料该如何选择。奥凡环保科技的服务恰好化解这些痛点:针对腐蚀性环境,会提供专属防护方案建议;关于填充材料,会明确推荐沥青麻丝搭配聚硫密封膏的组合,兼顾防水性能与减震效果;进入安装阶段,还会提供详细操作指引 —— 例如带法兰的人防密闭套管需先完成填充材料施工,再进行挡板焊接,避免后期出现缝隙。遇到技术疑问,拨打15093248915,工程师团队 24 小时在线回应。
3、密闭套管厂家直供,削减中间成本
对比其他同行,奥凡环保科技的厂家**模式优势显著。省去经销商、代理商等中间环节,采购成本可降低 15% 左右;即便定制特殊规格的产品,也不会额外收取高额定制费用,且同样提供质保服务。对注重成本控制的中高层管理者来说,这样的性价比既能兼顾产品质量,又能减轻工程预算压力。
三、采购决策前的 “关键考量”
对建筑、市政、人防工程的中高层管理者而言,选择密闭人防套管生产厂家,不能仅关注价格,更需重视 “合规性” 与 “服务能力”。合规性是工程验收的基础前提,需确认产品符合 04FS02、07FS02 图集要求;服务能力关系到采购后的便捷程度,从选型指导到安装协助,完善的服务能减少后续困扰。
奥凡环保科技的优势正在这些方面:遵循双图集规范生产,产品可直接用于人防验收;提供全类型产品供应,常规需求与定制需求均能满足;保障全周期服务支持,从采购到安装全程提供协助。若想了解具体产品参数,或**针对自身工程的定制报价,可直接访问奥凡环保科技官网,也可拨打15093248915与工作人员对接,快速**专属解决方案。

防护密闭套管B型示意图

防护密闭套管A型示意图

04FS02 图集 A-F 型密闭人防套管结构对比详图(图片来源于网络)
【相关文章推荐:了解a型b型刚性防水套管的区别,准确选择合适的穿墙套管类型】
【相关文章推荐:人防工程给排水井电气密闭套管F型有哪些制作要求】
【相关文章推荐:2021新版三维全彩人防图集(07FG01-05系列)-人防套管图集新版】



豫公网安备 41018102000158号
在线客服